Umfassende Bauanleitung für eine fahrende Bierkiste
Hier erfahren Sie alles was Sie zum Bau einer fahrenden Bierkiste brauchen. Sie wollen ein Fahrzeug haben das sonst keiner hat? Go Kart, Quad, Kinderquad , ATV kennen Sie bereits, aber eine fahrende Bierkiste hat keiner!
Ihre Nachbarn werden staunen! Wichtig bei einer fahrenden Bierkiste ist es dass man sie leicht mit dem Auto transportieren kann, sie hat spielend im Kombi platz, oder im Opel Corsa wenn man die Sitzbank umlegt. Wir haben uns bemüht die Bierkiste so einfach und billig wie möglich zu bauen. Lesen Sie gespannt in der Bauanleitung wie Schritt für Schritt eine fahrende Bierkiste entsteht. Erfahren Sie mehr wie die Lenkung funktioniert, oder eine Hinterachse gebaut wird. Vom Rahmenbau bis zur Elektrik ist alles erklärt. Welche Motoren sind brauchbar, wie viel Leistung sollte man haben? Welche Werkzeuge und Maschinen sind notwendig? Lesen Sie Schritt für Schritt die Bauanleitung durch, von der Teilebesorgung bis zur ersten Probefahrt. Erfahren Sie welche Probleme wir hatten und wie die Lösungen aussehen. Sie werden begeistert sein von der ersten Probefahrt mit Ihrer fahrenden Bierkiste!
Material fahrende Bierkiste:
Bevor man mit dem Bau einer fahrenden Bierkiste beginnt, muss man sich die nötigen Teile besorgen. Dabei sollte man systematisch vorgehen. Wir haben Rechteckrohr 40x40x1,5mm verwendet.
Für die Hinterachse eine Welle Durchmesser 25mm. Die Felgenaufnahme wurde links und rechts separat gedreht und mit der 25er Welle verschweißt. Diverse Flacheisen für die Stehlagereinheiten, Motorhalterung, Lenkung usw. Der Motor sollte Bierkisten tauglich sein, heißt luftgekühlt und die Kiste sollte über den Motor passen. Eine Bierkiste hat 30x40cm, in der Breite misst eine Dax Replica Motor gut 30cm, passt also sehr gut. Andere Motoren mit stehendem Zylinder gehen natürlich auch, die Motorhalterungen müssen sowieso individuell angepasst werden. Motoren mit über 8 PS bringen sehr gute Beschleunigung und ca. 80km/h Höchstgeschwindigkeit. Wir haben einen Motor von einem Online Auktionshaus gekauft, Chinesische Ware mit 125 ccm. Ein Nachbau einer Honda Dax, mit allem Zubehör, wie Vergaser und Luftfilter, Zündspule, Ladestromregler, Anlasserrelais, Kickstarter und Schalthebel.
Als nächstes die Felgen. Im Kinderquad Bereich gibt es teilbare 4 Zoll Felgen, auch eine gute Lösung. Die hinteren Reifen 3.00-4 sollten vom Roller oder Quad sein, Sackkarrenreifen halten Hinten nur ein paar hundert Meter. Bremsplatten machen hier schnell der Gar aus. Vorne sind Sackkarrenreifen wesentlich haltbarer. Wir haben Sackkarrenfelgen mit Reifen gekauft, hier sind bereits Kugellager verbaut, die sind aber unbrauchbarer Schrott. Die Kugellager schlägt man raus dann wird der Innendurchmesser der Felgen gemessen. Bierkiste Grundgestell. Material Feststellung.Meist sind es 35mm, danach kaufen wir dann unsere Radlager, in diesem Fall 35x17mm Nr. 6003 2Z, 5 Stück (4 Radlager, 1 Lenklager) die Ausführung 2Z oder ZZ bedeutet beidseitig mit Metall geschlossen. Ein weiteres Lenkkopflager mit 20mm Durchmesser und die beiden Stehlager UCP 204 mit 20mm Lager können auch gleich mitbestellt werden. Hier hat sich gezeigt, dass chinesische Lager vom Onlinehändler deutlich billiger sind und von der Lebensdauer vollkommen ausreichend sind. 4 oder 6 Kugelgelenkköpfe M8 werden benötigt, je nach dem ob man die Schaltung vor verlegt oder die Rasten ergonomisch in der nähe des Schalthebels anbringt. 1 Gewindestange M8. Schrauben M8 für die Lenkung. Schrauben M12 für die Stehlagereinheiten und die Achsschenkel. Einige Schrauben M6 für die Tankbefestigung und anderem Kleinkram wie Lötzinn, Japanstecker, Kabel usw.
Wir haben uns für einen Lenker entschieden, wegen der bequemeren Sitzposition und der einfacheren Anbringung. Wir haben einen Stummellenker einen alten GPZ 750 verbaut, die Stummeln komplett mit Gasgriff, Bremse, elektrische Schalter und Kupplungshebel. Der Bremssattel ist auch von der GPZ, wurde leicht modifiziert. Die Bremsscheibe und der Tank stammt aus dem Pocketbike Bereich. Die Scheibe ist die kleinste die man bekommt mit 120mm Durchmesser. Der Tank fasst 1 Liter. Krümmer und Auspuff ist selbstgebaut aus 1 Zoll Edelstahlrohr und Schweißbögen aus dem Heizungsbereich. Der Schalldämpfer ist aus einem Edelstahl Milchaufschäumer mit Lochblechrohr und Dämmwolle hergestellt. 420er Kette und ein 16er Ritzel für die Hinterachse.
Der Rahmen der fahrenden Bierkiste:
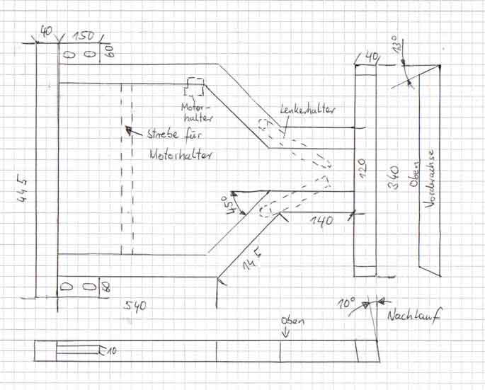
Der Rahmen der fahrenden Bierkiste muss folgende Komponenten aufnehmen: Lenkung Motor Bierkiste mit Sitz Hinterachse mit Hydraulikbremse. Am einfachsten winklig absägen und zusammenschweißen lässt sich ein Rechteckrohr.
Ein normales Rohr hat beim Sägen von zueinander passenden 45 Grad Winkelschnitten so seine Tücken. Für unsere Bierkiste haben wir eine 40x40mm Rechteckrohr mit 1,5mm Wandstärke verwendet. Der Rahmen wird enorm stabil und durch die geringe Wandstärke trotzdem sehr leicht. Als erstes muss man die Rohre nach Skizze auf Länge abschneiden und dann verschweißen. Jetzt werden zuerst die beiden Aufnahmen für Rahmen der Bierkistedie Lenkschenkel verschweißt und gebohrt. Die Lenkschenkel können jetzt an die Vorderachse mit 13 Grad Spreizung angeschweißt werden. Die Vorderachse wird unter einem Winkel von 10 Grad Nachlauf (siehe Lenkung) an den Rahmen angeschweißt. Hinten werden die beiden Aufnahmeplatten für die Hinterachsstehlager angeschweißt. Die Platten müssen vorher mit Langlöcher für die Stehlagereinheiten versehen werden. Beim anschweißen ist zu beachten dass die Achse möglichst knapp über den Rahmen läuft, damit genügend Bodenfreiheit für Schotterpisten gegeben ist. 5mm zwischen Achse und Rahmen sind ausreichend. Die Motorhalterung und Streben für die Lenkung werden erst später nach und nach angebracht. Soweit ist jetzt unser Rahmen fertig, als nächstes wird die Hinterachse eingebaut. (Kapitel Achse)

Die Felgen der fahrenden Bierkiste:
Bevor wir die Hinterachse fertigen müssen noch die Felgen Bierkistentauglich überarbeitet werden. Zuerst werden die Felgen zerlegt und die Schweißnaht vom Lagerrohr zur Blechfelge verstärkt.
Das heißt eine schöne dicke stabile Naht drüberziehen. Die alten Lager werden entfernt und bei den Vorderrädern durch die neuen 17x35 mm Kugellager ersetzt. Zwischen den Kugellagern muss ein Rohr mit Innendurchmesser größer 17mm eingebaut werden. Das überträgt die Kraft beim Anziehen der Vorderräder vom Innenring des äußeren Kugellagers zum Innenring des inneren Kugellagers auf die Achsschenkel. Damit können die Räder fest angezogen werden und die Kugellager laufen spannungsfrei. Bei den beiden hinteren Felgen muss ein Rohr eingeschweißt werden. Dazu wird zuerst die Felge auf der Drehmaschine aufgenommen und der Innendurchmesser auf 35mm wie der Lagersitz nur durchgehend ausgedreht. Dann brauchen wir 2x eine Welle mit 35mm Durchmesser, 95mm Lang und 2x 20mm Lang. Die werden aufgebohrt auf Durchmesser 20H8 und je auf einer Seite kräftig angefasst zum zusammenschweißen.
In die beiden kurzen Stücke Felgenverbreiterungwird die 6mm breite Keilnut geräumt. Diese nimmt dann das Rad formschlüssig auf der Antriebsachse mit. Jetzt wird das Lange und Kurze Stück auf eine 20er Welle gesteckt und zusammengeschweißt, danach wird die Schweißnaht bündig überdreht. Diese Arbeit kann man sich sparen wenn man in der Lage ist eine 115mm lange Keilnut herzustellen. Das hergestellte Rohr kann nun in die Felge gesteckt und auf der Außenseite mit 10mm Überstand (damit man schön schweißen kann) innen und außen verschweißt. Durch das 115mm lange Rohr wird die Spur verbreitert, und wir rücken mit dem Reifen etwas weiter vom Lager weg. Wir haben bei unserer Bierkiste in die Hinterfelgen noch 20mm Breite Scheiben verbaut, damit wird die Felge breiter und der Reifen schaut „fetter“ aus.

Die Achsen der fahrenden Bierkiste:
Bevor wir die Hinterachse fertigen müssen die beiden Stehlager auf den Rahmen geschraubt werden. Die Seite mit den Madenschrauben nach aussen. Jetzt muss das Maß zwischen den beiden Lagern exakt mit dem Meterstab gemessen werden.
Dieses Maß muss bei der Fertigung der Achse eingehalten werden damit später die Reifen fest gegen die Lager angezogen werden könne. Die Gesamtlänge der Achse berechnet sie wie folgt: Der gemessene Abstand zwischen den Lagern X + 2x Lagerbreite 31mm + 2x Felgenbreite 112mm (115-3 Luft zum sicheren klemmen) + 2x Gewinde M12 23mm. Die 25er Welle auf die errechnete Länge abschneiden, links und rechts das Gewinde M12 und den Lager- und Felgensitz im Durchmesser 20 -0,02/-0,05 fertigen. Auf die Länge 143mm achten, Lager und Felge zusammen müssen ca. 3mm überstand haben damit der Reifen fest angezogen werden kann. Nach der Drehbearbeitung muss noch die 6mm Keilnut gefräst werden.
Jetzt müssen noch die beiden Aufnahmen für das Ritzel und die Bremsscheibe gedreht werden. In eine 50er Welle wird ein Loch gebohrt und auf 25mm ausgedreht. Die beiden Aufnahmen sollten sich leicht auf der Welle verschieben lassen. Bei der Bremsscheibenaufnahme wird ein Absatz 3mm lang angedreht, damit sich die Bremsscheibe zentriert. Die Aufnahmen sind ca. 30mm lang und mit einem Absatz zum Schweißen versehen. Die Gewinde für die Bremsscheibe können auch gleich gesetzt, Hinterachse der Bierkiste, die Scheibe angeschraubt und auf die Achse gesteckt werden. Jetzt muss ein Ritzel 15 oder 16 Zähne (beim 125er China-Replica-Motor) auf 25mm ausgedreht werden. Die Dinger sind gehärtet, deshalb langsam und vorsichtig arbeiten. Zwei 9er Löcher für M8 Schrauben mit einem Hartmetallbohrer durch die Ritzel bohren und zwei Gewinde M8 in die Aufnahme schneiden, dann alles auf die Achse stecken und samt Lager am Rahmen montieren. Die Achse kann jetzt in den Langlöchern hin und her geschoben werden. In der Mittelstellung wird jetzt der Bremssattel über die Schiebe gesteckt. Nicht zu tief, die Bremsbeläge dürfen nicht an der Scheibenaufnahme angehen. Jetzt kann die Höhe der Halter für den Bremssattel gemessen werden. Ablängen, Löcher setzten und auf Position anschweißen. Den Sattel anschrauben, drauf achten dass der Schwimmsattel auf Mittelposition steht, dann kann die Bremsscheibe an der Achse verschweißt werden. Nun kommen wir zum nächsten Kapitel den Motoreinbau.


Der Motor für die fahrende Bierkiste:
Befestigt wird der Motor an 3 Punkten. Hinten an der unteren Motorhalterung und vorne links an der unteren Halterung. Zum Motoreinbau wird der Rahmen ohne Räder flach auf den Boden gelegt. Ein ca. 30mm starkes Holzbrett wird unter den Motor mittig im Rahmen platziert. Die Hinterachse mit der bereits montierten Bremsscheibe wird in den Langlöchern ganz nach vorne geschoben. Den Motor links wie rechts gleich verteilt platziert. Jetzt kann eine Strebe aus einem Rechteckrohr (25x15 bei unserer Bierkiste) oder Flacheisen abgesägt und zwischen den Rahmen bündig mit der Unterseite des Rahmens platziert werden. Da die Achse ganz nach vorne gerückt ist kann man knapp an die Bremsscheibe herangehen. Die Strebe kann mit Schweißpunkte fixiert werden. Jetzt können die beiden Flacheisen für die hintere Motorhalterung gemessen, auf Länge gesägt und mit 9er Löchern gebohrt werden. Mit einer langen Schraube oder einer M8 Gewindestange die Halter am Motor montieren, die Ausrichtung nochmals kontrollieren und die Halter anheften. Für den vorderen Motorhalter brauchen wir einen Winkel den wir nach dem Maß nehmen zusammenschweißen und mit 9mm bohren. Den Winkel anschrauben und dann anheften. Jetzt kann der Motor ausgebaut und die Halterung komplett geschweißt werden. Der Motor wird wieder eingebaut und die Hinterachse ca. auf Mittelposition gebracht. Die Kette kann übergelegt werden und auf die richtige Länge gekürzt werden. Mit dem Kettenschloss die Kette anbauen und die Ritzelhalterung auf der Achse exakt flüchtig mit dem Motorritzel ausrichten. Die Halterung an die Hinterachse anschweißen. Jetzt kann die Kette gespannt werden und die Achse wird festgeschraubt.
Die Ansaugbrücke mit Vergaser anschrauben, Gas- und Kupplungsseil einhängen und einstellen. Wir haben zwecks bequemerer Sitzposition den Schalthebel und die Fußrasten nach vorne verlegt. Bei einer sportlichen Sitzposition kann man den Schalthebel normal montieren und dann einfach Rasten am Rahmen anschweißen. Aber so haben wir einen Schalthebel halb abgeschnitten und ein Kugelgelenk angeschraubt. Vorne haben wir uns über den Rahmen mit einem 20er Rohr eine Fußablage geschweißt und auf einer Seite einen Bolzen mit einem Gewinde M10 gedreht, ins Rohr gesteckt und verschweißt. Aus einem 2. Schalthebel haben wir uns eine Schaltwippe gebaut. Die Innenverzahnung Aufgebohrt damit der Hebel schön über den Bolzen geht. Einen weiteren Schalthebel zur Wippe angeschweißt, ein kurzes Stück senkrecht nach oben angeschweißt und einen Gelenkkopf angeschraubt. Jetzt kann die Wippe an der Rastenanlage befestigt werden und mit einer Gewindestange die Schaltung verbunden und eingestellt werden. Wir haben anstatt der Gewindestange ein Rohr mit angeschweißten M8 Gewinde genommen. Soweit ist jetzt der Antrieb, die Lenkung und Bremse fertig, im Prinzip ist die Bierkiste fahrbereit!

Die Lenkung an der fahrenden Bierkiste:
Der schwierigste Teil beim Bierkistenbau ist die Lenkung. Beim Kapitel Rahmenbau haben wir schon die wichtigsten Winkel für eine gut funktionierende Lenkung vorweggenommen, hier aber zuerst einmal zu Theorie wie eine Lenkung funktioniert.
Wenn wir das Lenkrad, den Lenker loslassen folgt das Fahrzeug automatisch dem Geradeauslauf. Das wird erreicht durch die Spreizung. Die Spreizung ist der Winkel zwischen der Achse der Lenkschenkel und der Lenkhochachse. Der Rahmen liegt am tiefsten Punkt wenn die Räder im Geradeauslauf stehen. Wenn wir Lenken heben wir den Rahmen gegen die Schwerkraft an. Beim loslassen der Lenkung drückt das Gewicht des Fahrzeugs nach unten und die Räder in den Geradeauslauf. Dadurch erreichen wir einen stabilen Geradeauslauf auch bei höheren Geschwindigkeiten und eine stabile Lenkung. Bei der Bierkiste hat sich eine Spreizung von 10-15 Grad bewährt. Unsere Kiste ist mit 13 Grad Spreizung gefertigt. Der Nachlauf ist der Winkel zwischen Lenkachse in Fahrtrichtung und dem Reifenaufstandspunkt. Beim Motorrad ist der Nachlauf das entscheidende Merkmal über eine gut funktionierende Lenkung. Bei unserer Bierkiste ist der Nachlauf für eine saubere Kurvenfahrt notwendig. Ohne Nachlauf hebt sich der vordere Rahmen links und rechts gleichmäßig an. Da die Hinterachse aber ohne Differential auskommen muss, würde das Fahrzeug trotzdem kaum eine Kurve fahren. Durch den Nachlauf hebt sich das kurveninnere Rad stärker an als das äußere Rad. Achsschenkel und Aufnahme der BierkisteWenn wir nun in die Kurve fahren, verlagert sich das Gewicht auf die kurvenäußeren Räder, das innere Vorderrad hebt zudem den Rahmen an, das innere Hinterrad hebt sich vom Boden. Jetzt ist eine exakte Kurvenfahrt möglich. Im Bierkistenbau hat sich ein Winkel von 8-12 Grad Nachlauf in der Praxis als optimal herausgestellt. Für unsere Bierkiste haben wir 10 Grad genommen. Der Sturz ist der Winkel zwischen dem Rad und der Senkrechten zur Fahrbahn (oder Lenkhochachse) im Geradeauslauf. Würden wir unsere Lenkschenkel senkrecht zusammenschweißen, hätten wir einen Sturz von 13 Grad.
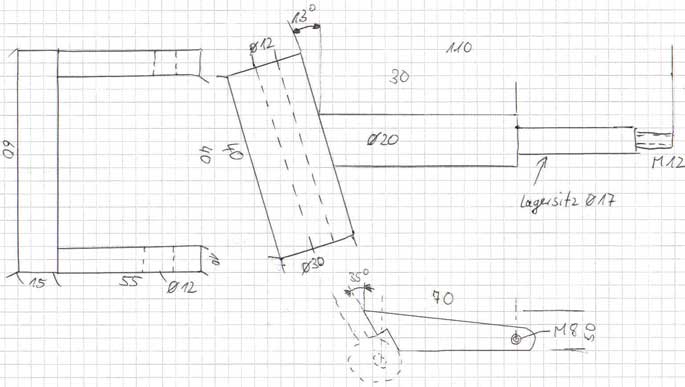
Die Lenkung würde deshalb genauso funktionieren, allerdings hätten wir vorne weniger Bodenfreiheit und bei Verwendung von Reifen mit gerader Lauffläche wie bei Auto-, Kart- oder Quadreifen der Fall, würden die sich innen stark abnutzen. Deshalb ist der Lenkschenkel auch im Winkel von 13 Grad zusammengeschweißt. Als erstes werden die Rahmenteile welche die Vorderachse aufnehmen 10 Grad schräg abgesägt. Das ergibt unseren Nachlauf. Dann wird die Vorderachse beidseitig mit 13 Grad auf 340 mm abgelängt. Das ergibt unsere Spreizung. Danach werden die Lenkschenkelaufnahmen nach Zeichnung gefertigt. Die Bohrung 12 sollte nach dem Schweißen mit einer Reibahle in H7 Qualität erstellt werden. Damit fluchten die Bohrungen sicher. Die beiden Aufnahmen können jetzt an die Vorderachse angeschweißt werden und die Vorderachse dann an den Rahmen. Für die Lenkschenkel brauchen wir eine Welle mit 30-35 mm Vorspureinstellung Bierkiste für sportliches FahrenDurchmesser. Die Länge muss später exakt in die Aufnahme eingepasst werden, deshalb ca. 3mm länger auf 43mm abschneiden. Mittig muss jetzt eine 20mm Bohrung 13 Grad schräg gesetzt werden. Die Bohrung in H8 Qualität fertigen, damit die 20er Welle sauber mit wenig Spiel sitzt. Der Länge nach eine 12er Bohrung anbringen für den Lenkbolzen und die exakte Länge in die Aufnahme einpassen.
Jetzt noch den 20er Bolzen mit Lagersitz für die Felge drehen. Den Lagersitz 2-3mm kürzer machen als die Klemmbreite der Lager in der Felge ist. Anzugsgewinde ist M12. Nun können die beiden Lenkschenkel nach Skizze verschweißt werden. Jetzt noch die beiden Lenkschenkel mit dem Gewinde M8 für die Kugelköpfe herstellen. Dazu bracht man ein Flacheisen 10x50mm auf einer Seite 35 Grad schräg abgeschnitten. Bis zur Hälfte mit einen 5mm Absatz versehen, diese Seite ist zum verschweißen vorgesehen. Am anderen Ende wird das Gewinde M8 geschnitten. Die beiden Lenkschenkel mit einer Schraube M12 montieren. Die Selbstsichernde Mutter nur so fest anziehen dass sich die Teile spielfrei und leicht bewegen lassen. Nach Montage können die beiden Lenkschenkel mit den Gewinde M8 angeschweißt werden.


Die Elektrik an der fahrenden Bierkiste:
Aus dem Replica Motoren kommen 2 Kabelbündel, einmal von Lichtmaschine und Zündung und von der Ganganzeige. Bei manchen Motoren passt der Stecker der Ganganzeige in die CDI, aber das ist definitiv nicht richtig. Manche Motoren haben auch nur einen Neutralanzeiger. Beim einlegen des Leergangs wird das Kabel auf Masse geschalten. Die anderen Kabel sind Gelb – Fahrlicht, Weiß – Ladestrom, Grün – Masse, Blau-Weiß – CDI, Rot-Schwarz – CDI. Die CDI hat zudem noch einen Anschluss für Masse, Zündspule und zum Abstellen. Zum Abstellen wird das Kabel gegen Masse geschaltet. Die Zündspule hat 2 Anschlüsse, Grün für Masse, Schwarz-Gelb für den Zündfunken und natürlich den Kerzenstecker. Der Regler hat 4 Anschlüsse, Weiß – Ladestrom, Gelb – Lichtstrom (hier kann für einen Scheinwerfer abgezweigt werden), Rot – Batterie+, Grün – Masse. Für den Regler kann man Flachstecker verwenden, falls kein Systemstecker vorhanden, bei der CDI passt ein alter Japansystemstecker (gibt auch neu noch im Motorrad(versand)handel) ansonsten sollte man auf die einfachen runden Japanstecker wie sie auch am Motor verbaut sind zurückgreifen. Das Startrelais wird direkt mit dem dicken Kabel vom Anlasser und an die Batterie mit einem gleichdicken (ca. 6mm²) Kabel verbunden. Eines der beiden dünnen Kabel wird gegen Masse geklemmt, das 2. an den Startschalter angeschlossen. Ein Kabel vom Startschalter geht direkt an den Pluspol der Batterie. Wir haben den Motor bisher nicht ohne Batterie laufen gelassen, deshalb können wir keine Auskunft geben ob und wie der Motor angeschlossen wird und läuft. Wir haben eine wartungsfreie Batterie von einer XT 600 verbaut, die startet den Motor spielend und kostet ca. 25 Euro. Wenn keine oder nur eine schwache Batterie verbaut wird muss man auf dem Komfort verzichten und die Bierkiste anschieben. Ein Kickstarter ist nur sehr schwer zu realisieren. Die Bierkiste müsste nochmals ausgeschnitten werden und dann ist die Kickstarterwelle immer noch zu kurz.

Tank und Auspuff:
Als Benzintank haben wir uns einen kleinen Tank eines Pocketbikes besorgt, mit 1 Liter Fassungsvermögen. Der Tank ist etwas erhöht um den Benzinfluss in den Vergaser sicherzustellen. Es kann alternativ auch ein Tank in die Bierkiste eingebaut werden. Dann bracht man allerdings eine Benzinpumpe und einen Zündungsschalter der die Pumpe einschaltet. Eine Benzinpumpe bekommt man sicherlich günstig vom Schrottplatz, dann kann man aber auf eine Batterie nicht mehr verzichten. Wir haben uns hier für die einfachste und billigste Lösung entschieden.
Den Auspuff haben wir aus 1 Zoll Edelstahlrohr, Schweißbögen und einen V2A Milchaufschäumer selbst gebaut. Zuerst allerdings müssen wir einen Flansch drehen, welcher genau in den Auslass passt, mit einem Ansatz, ca. 4mm größer damit die Schelle mit den beiden Löchern für die M6 Stehbolzen den Krümmer fest an den Motor hält. An diesem Flansch wird ein 28er Edelstahlrohr angeschweißt, dann die Schelle welche aus einem VA Flacheisen gefertigt wurde aufgesteckt. Den Abstand der Stehbolzen am Motor messen und in die Mitte ein 30mm Loch bohren. Die Ecken mit der Flex abrunden. Das erste Krümmerteil mit dem 28er Rohr in den Motor stecken, am besten gleich anschrauben und die Länge des Rohres bis zum 1. Rohrbogen anmerken und ablängen. Das Zollrohr sollte waagrecht auf höhe des Rahmens nach hinten laufen. Zwischen Hinterachse und Motor mit einem weiteren Bogen den Auspuff nach oben gehen lassen. Den Krümmer in Position bringen und nur heften bis alles passt. Dann erst alles richtig verschweißen. Der Auspuff selbst wird aus mehreren Einzelteilen zusammengebaut. Die Außenhülle ist ein ehemaliger VA Milchaufschäumer, eine Isolierkanne geht sicherlich auf. Oben aufgebohrt für das Rohr Endstück, unten verschlossen mit einer Scheibe, im Inneren mit einem gelochten Rohr, aus einem alten Autoauspuff und Dämmwolle. Als Anschluss haben wir einen geschlitzten Flansch gedreht welcher knapp über das 1 Zoll Rohr geht und mit einer Auspuffschelle geklemmt wird. Unser Auspuff wird nur über den Krümmerflansch am Motor gehalten, hält Bombenfest, man kann aber sicherlich hinten noch eine Halterung am Rahmen zum Auspuff anbringen.
Endmontage:
Eine Bierkiste hat die Außenmaße 30x40 cm. Die Bierkisten mit den „alten“ Flaschen sind etwas größer 33x40 cm. Wir haben uns für eine klassische Bierkiste entschieden von der Brauerei von unserer Heimat. Die Kiste muss innen komplett ausgehöhlt werden, der Zylinder braucht vorne Platz, ein Schlitz für den Schalthebel und hinten muss die Kette und der Motor platz haben. Das Innenleben haben wir mit der Bandsäge ausgeweidet, den Rest mit der Stichsäge. Es ist ratsam sich Stück für Stück heranzutasten, sonst schneidet man zuviel weg. Befestigt haben wir unsere Kiste mit vier Schrauben, die einfach senkrecht auf den Rahmen geschweißt wurden. Die Kiste bekam unten in die umlaufende Verstärkung 4 Löcher und konnte nieder geschraubt werden. Bei einer neumodernen Kiste kann man 4 Flacheisen stehend auf den Rahmen schweißen und mit Schrauben die Kiste befestigen. Als Sattel haben wir ein Holzbrett dick gepolstert und mit Kunstleder überzogen. Als Befestigung dient ein Flacheisen mit 3 Punkten zum anschrauben, links, rechts und hinten. An der Bierkiste wird zusätzlich auch die gesamte Elektrik angeschraubt, CDI, Regler und Starterrelais.
Probefahrt und Verbesserungen:
Zur ersten Probefahrt wurde die Lenkung sehr direkt gewählt, die beiden Kugelköpfe waren auf der vorletzten Stellung. Es hat sich gezeigt daß bei der kleinsten Bewegung am Lenker eine spontane Reaktion der fahrenden Bierkiste folgte.
Das nächste Problem war nach kurzer Fahrt eine überspringende Kette! Also kurzer Pitstop und die Kette neu gespannt, und die beiden Stehlager schön fest angezogen. Im Großen und Ganzen verlief die erste Probefahrt doch recht erfolgreich, der Motor ging sehr gut, die Leistung von 12 PS scheinen nicht zu wenig zu sein, im Gegenteil! Die Lenkung war zu direkt, hier haben wir uns aber keine Sorgen gemacht weil wir noch verstellmöglichkeiten haben. Was allerdings positiv an der Lenkung auffiel, war ein sehr guter Geradeauslauf, auch bei höherer Geschwindigkeit und das Rückstellmoment der Lenkung in den Geradeauslauf. Der Rahmen war ausgesprochen stabil, zeigte keine Probleme. Die Bremswirkung war gut, wenn auch nur auf der Hinterachse eine Scheibe montiert ist. Auch die vorderen Achsschenkel und die Aufnahme mit den Bolzen war problemlos. Nachdem die Lenkung verstellt war ging es doch etwas leichter die Bierkiste auch bei Höchstgeschwindigkeit auf Kurs zu halten. Kein nervöses Schlingern oder sonstiges, einfach nur ein sauberer Geradeauslauf. Nach den ersten beiden Probefahrten stellte sich allerdings schnell heraus daß die Reifen von der Sackkarre nach ein paar Vollbremsungen schon runter waren, teilweise schaute die Leinwand schon raus.
Auf der Vorderachse halten sie doch eine bestimmte Zeit recht wacker durch. Die Hinterräder wurden durch Scooterreifen ersetzt und halten deutlich besser stand. In der Größe 3.00-4 gibt es zudem noch Heuwenderreifen, Balkenmäher-, Kleintraktorenreifen und Quadreifen. Die Quadreifen sind Stollenreifen und sicherlich im Schnee Top, allerdings vorne Heuwenderreifen und hinten Balkenmäherreifen wäre auch eine Schau! Das nächste Problem dass dann nach mehreren Fahrten auftrat war schon gravierender. Unsere erste Hinterachse war zwecks Gewichtsersparnis aus einem 22er Edelstahlrohr im Mittelteil gebaut. Links und Recht die beiden Radaufnahmen waren massiv und am Rohr angeschweißt. Der Motor entwickelte eine solche Kraft dass es die Achse durch ein Überspringen der Kette verbog. Die Achse wurde durch eine neue mit einem 25er Vollmaterial ersetzt. Eine weitere Kleinigkeit sind einige gelockerte Muttern vom Tank, Regler und dem Hinterachsritzel. Hier wurde beim Service auf Selbstsichernde Muttern und Federringe zurückgegriffen. Nun wünschen wir Ihnen viel Spass, mit dem Bau der fahrenden Bierkiste.
Super geil! So was brauche ich auch.
Nachdem ich diese Bauanleitung zur fahrenden Bierkiste mit Motor gelesen haben, bin ich begeistert. Sofort werde ich mich an den Bau der Bierkiste machen. Jetzt über die Wintermonate habe ich viel Zeit dazu. Mal sehen ob ich im Frühling dann schon fahrbereit bin. Ich werde mich bei euch melden, ob Ihr das ein oder andere Teil dazu im Shop verfügbar habt. Wenn nicht, könnt ihr mir sicher bei der Suche helfen.
Bin aber noch am Überlegen, von welcher Brauerei ich die Bierkiste nehmen soll. Brauerei Hintereder Chammünster kenne ich leider nicht. :)
Viele Grüße
Werner
Super geile fahrende Bierkiste nach eurer Bauanleitung gebaut
Hallo,
Danke für die Bauanleitung zu fahrenden Bierkiste. Hab es selber nachgebaut. Hat alles perfekt geklappt.
Geht ab ohne Ende das Teil.